Bilocale in vendita

Marano Ticino, Via Circonvallazione
€ 50.000
2 locali 2 locali
70 Mq 70 Mq
1 bagno 1 bagno

Bilocale in vendita

Marano Ticino, Via Circonvallazione

Descrizione annuncio

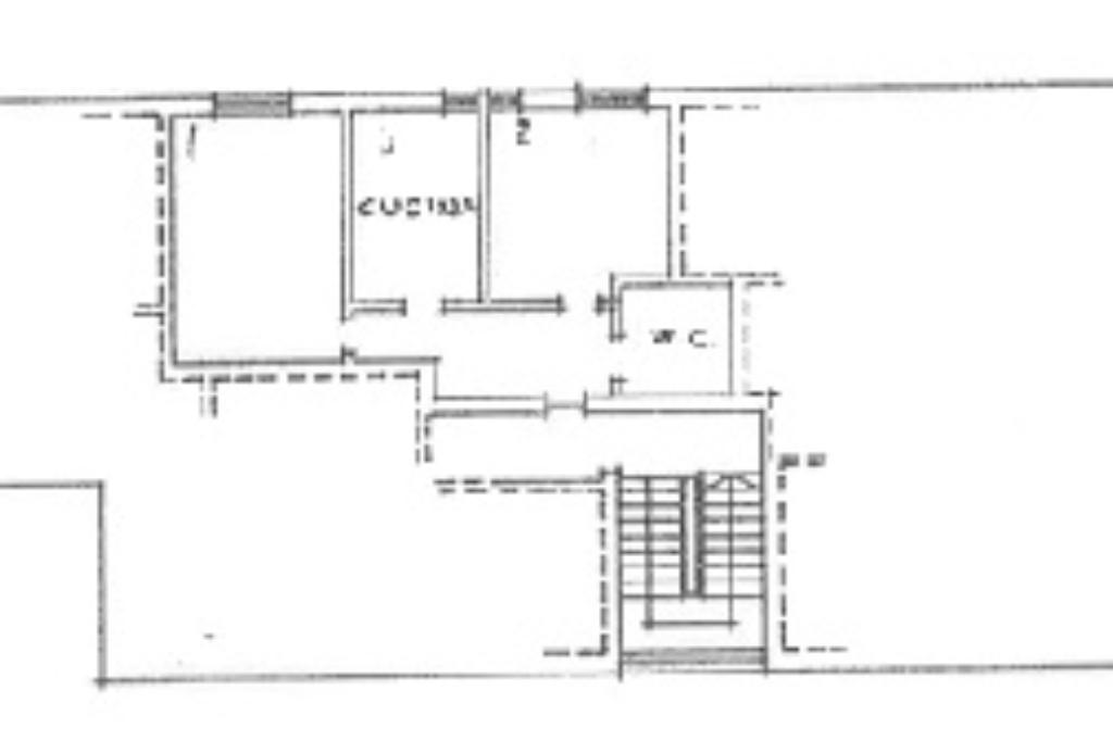
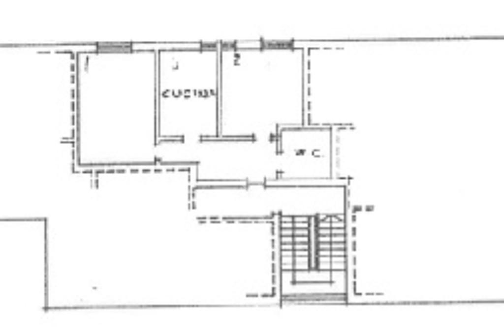
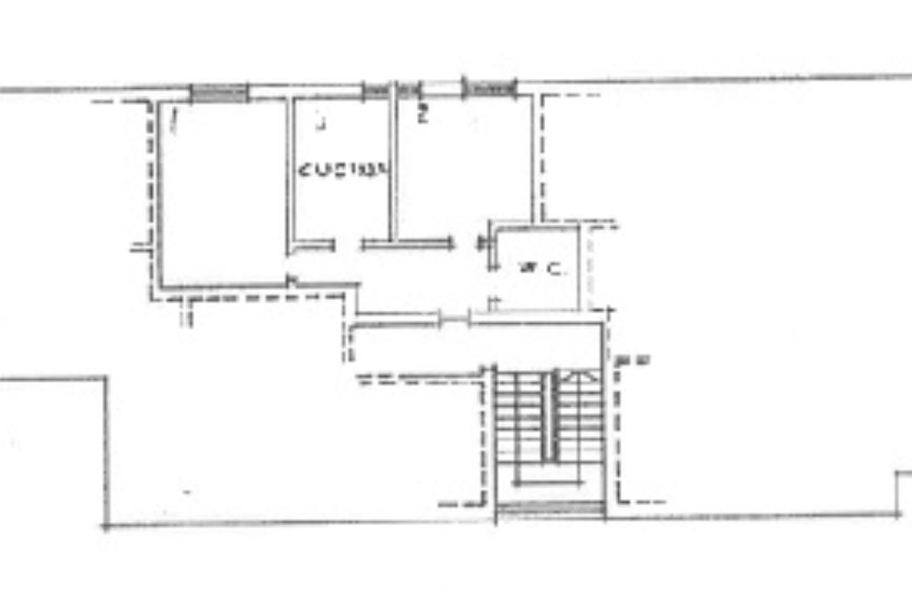
MARANO TICINO: in un contesto tranquillo, proponiamo, al secondo piano senza ascensore, un appartamento di 70 mq. L'immobile è composto da locali ben distribuiti. Comprende un soggiorno ampio e luminoso, una cucina abitabile, un bagno con vasca e una camera da letto matrimoniale. L'appartamento necessità di lavori di riammodernamento, ideale per chi vorrebbe sfruttare la soluzione ad uso investimento.

Mostra tutto

Nelle vicinanze

Trasporto pubblico Trasporto pubblico
Marano Ticino
Marano Ticino
260 m
Trasporto pubblico
220 m
Pombia
Pombia
2,4 Km
Scuole Scuole
Scuola Primaria "Don Milani"
240 m
Scuole
240 m
Scuola dell'infanzia "San Giovanni Battista"
450 m
Scuola Elementare Oreste Leonardi
2,0 Km
Scuola Materna Monsignor Carlo Giani
2,1 Km
Farmacia Farmacia
Farmacia Fatigato
210 m
Farmacia Berti
2,4 Km
Bar Bar
Bar
400 m
Ristoranti Ristoranti
Ristoranti
1,4 Km
Ristorante Monticello
2,7 Km
Casa Gioelvidal
3,0 Km
Mostra tutto

Caratteristiche

Rif.:
61119305
Piano:
2 di 3 (Piano medio)
Camere da letto:
1
Arredamento:
Assente
Condizionamento:
Assente
Ascensore:
No
Mostra tutto
Prezzo Prezzo
€ 50.000
Rata mutuo Rata mutuo
€ 236 / mese
Spese annue Spese annue
€ 0
Proponi il tuo prezzoProponi il tuo prezzo

Classe Energetica

G
G
G
G
G
G
G
G
G
EP invernale del fabbricato:
EP estiva del fabbricato:
Anno di costruzione:
1990
Riscaldamento:
Autonomo
Tipo impianto:
A radiatori
Tipo alimentazione:
Metano

Ti interessa visionare l'immobile?

Fissa un appuntamento  Fissa un appuntamento

Richiedi informazioni

Clicca su Leggi per aprire l'informativa
* Questi campi sono obbligatori

Calcola il tuo mutuo

Semplice e senza impegno
Anticipo

( % )
Mutuo

( % )

pochi semplici passi

inserisci i tuoi dati
Questionario completato
Grazie per aver richiesto un appuntamento senza impegno con un nostro Consulente del Credito e Assicurativo.

Hai inserito correttamente tutti i dati necessari e a breve riceverai una e-mail con un link da convalidare per inviare i tuoi dati.
Affiliato
Immobiliare Oleggio Sas
Via Verjus, 11 28047 Oleggio (NO)

Il nostro staff


  • Cinzia Galgano
    Coordinatrice

  • Sabrina Nostro
    Collaboratrice

  • Christian Poletti
    Collaboratore

  • Kristian Eramo
    Affiliato

  • Davide Santoro
    Collaboratore
Via Verjus, 11 28047 Oleggio (NO)
Zona: Oleggio-Bellinzago N.Se-Marano T.no-Momo-Suno Barengo-Mezzomerico-Vaprio D'agogna
Mostra su mappa
Affiliato
Immobiliare Oleggio Sas
Via Verjus, 11 28047 Oleggio (NO)

2026 Tecnocasa Franchising S.p.A. - P. IVA 08365160152 - Via Monte Bianco 60/A 20089 Rozzano (MI). Ogni agenzia ha un proprio titolare ed è autonoma. Privacy policy | Policy utilizzo | Cookie policy