Bifamiliare in vendita

Oleggio, Via Suno
€ 499.000
7 locali 7 locali
250 Mq 250 Mq
3 bagni 3 bagni

Bifamiliare in vendita

Oleggio, Via Suno

Descrizione annuncio

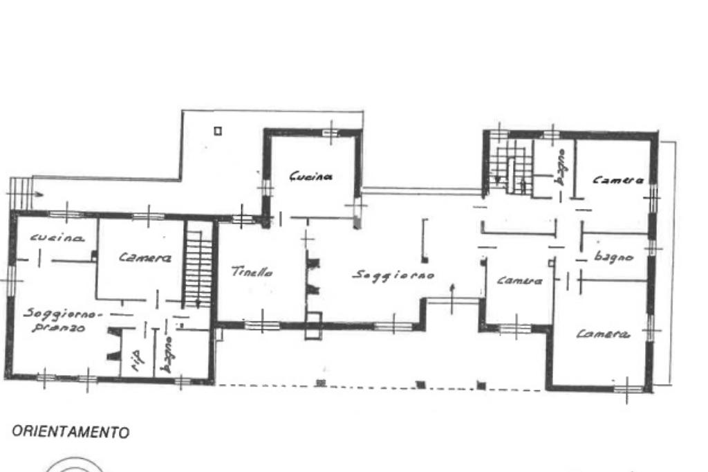
OLEGGIO: In zona tranquilla e immersa nel verde proponiamo in vendita villa bifamiliare di circa 250 mq, ideale per chi desidera ampi spazi abitativi e un contesto signorile.
L’abitazione principale, disposta su un unico livello, è composta da ampio ingresso, soggiorno con camino, cucina con terrazza, sala da pranzo, bagno finestrato con doccia, bagno finestrato con vasca e tre camere da letto, di cui una adibita a studio. Le camere hanno accesso diretto al balcone, offrendo ulteriore luminosità e affaccio sul verde circostante.
Al piano interrato, accessibile tramite scala interna, troviamo tre ampi locali attualmente adibiti a cantina, con possibilità di essere convertiti in taverna, oltre a due box auto coperti.
La proprietà comprende inoltre una seconda unità abitativa, un bilocale con accesso indipendente, composto da cucina, soggiorno, camera da letto con terrazzo e bagno finestrato con doccia. Anche questa unità dispone di due locali al piano seminterrato, attualmente adibiti a cantina, con possibilità di trasformazione in taverna.
Completano la proprietà impianto d’allarme già installato e funzionante e un meraviglioso giardino privato di circa 3700 mq, che circonda l’intera villa, garantendo privacy, tranquillità e ampi spazi all’aperto.
Soluzione assolutamente da visionare!!!

Mostra tutto

Nelle vicinanze

Trasporto pubblico Trasporto pubblico
Oleggio
Oleggio
920 m
Marano Ticino
Marano Ticino
3,0 Km
Trasporto pubblico
740 m
Ricariche auto elettriche Ricariche auto elettriche
EnelX Via dei Negri Oleggio
890 m
EnelX Oleggio Momo
1,0 Km
EnelX della Pace Oleggio
1,2 Km
EnelX fast Oleggio
1,3 Km
EnelX Oleggio Via dei Bastioni
1,6 Km
Scuole Scuole
Scuola Materna Anna Maria Negri
950 m
Scuole
1,3 Km
Scuola Elementare Rina Palestrini
1,3 Km
Istituto Comprensivo Statale Enrico Stanislao Verjus
1,3 Km
Scuola Elementare Gianni Rodari
1,7 Km
Farmacia Farmacia
Farmacia Julitta
1,1 Km
Farmacia Mazzonzelli
1,2 Km
Antica Farmacia Celesia
1,3 Km
Farmacia Chimica Fortina
1,3 Km
Ospedali Ospedali
ASL13 - Ambulatori Oleggio
1,1 Km
Supermercati Supermercati
Supermercato Carrefour Market
1,1 Km
Coop
2,0 Km
MD
2,2 Km
Negozi Negozi
Negozi
1,8 Km
Ermenegildo Zegna Outlet
1,8 Km
Fresco Mercato
2,2 Km
Bar Bar
Bar
760 m
Ristoranti Ristoranti
BucA
1,0 Km
Dinamo
1,2 Km
Dinamo Ristorante
1,2 Km
Ristoranti
1,2 Km
Pizzeria 2002
1,3 Km
Mostra tutto

Caratteristiche

Rif.:
61162157
Piano:
1 di 1 (Piano basso)
Box:
2
Posti auto:
2
Balconi:
1
Terrazzi:
1
Mostra tutto
Prezzo Prezzo
€ 499.000
Rata mutuo Rata mutuo
€ 2.368 / mese
Spese annue Spese annue
€ 0
Proponi il tuo prezzoProponi il tuo prezzo

Classe Energetica

E
E
E
E
E
E
E
E
E
EP invernale del fabbricato:
EP estiva del fabbricato:
Anno di costruzione:
1976
Riscaldamento:
Autonomo
Tipo impianto:
A radiatori
Tipo alimentazione:
Metano

Ti interessa visionare l'immobile?

Fissa un appuntamento  Fissa un appuntamento

Richiedi informazioni

Clicca su Leggi per aprire l'informativa
* Questi campi sono obbligatori

Calcola il tuo mutuo

Semplice e senza impegno
Anticipo

( % )
Mutuo

( % )

pochi semplici passi

inserisci i tuoi dati
Questionario completato
Grazie per aver richiesto un appuntamento senza impegno con un nostro Consulente del Credito e Assicurativo.

Hai inserito correttamente tutti i dati necessari e a breve riceverai una e-mail con un link da convalidare per inviare i tuoi dati.
Affiliato
Immobiliare Oleggio Sas
Via Verjus, 11 28047 Oleggio (NO)

Il nostro staff


  • Cinzia Galgano
    Coordinatrice

  • Sabrina Nostro
    Collaboratrice

  • Christian Poletti
    Collaboratore

  • Kristian Eramo
    Affiliato

  • Davide Santoro
    Collaboratore
Via Verjus, 11 28047 Oleggio (NO)
Zona: Oleggio-Bellinzago N.Se-Marano T.no-Momo-Suno Barengo-Mezzomerico-Vaprio D'agogna
Mostra su mappa
Affiliato
Immobiliare Oleggio Sas
Via Verjus, 11 28047 Oleggio (NO)

2026 Tecnocasa Franchising S.p.A. - P. IVA 08365160152 - Via Monte Bianco 60/A 20089 Rozzano (MI). Ogni agenzia ha un proprio titolare ed è autonoma. Privacy policy | Policy utilizzo | Cookie policy