Villa a schiera in vendita

Suno, Via Sandro Pertini
€ 209.000
4 locali 4 locali
160 Mq 160 Mq
2 bagni 2 bagni

Villa a schiera in vendita

Suno, Via Sandro Pertini

Descrizione annuncio

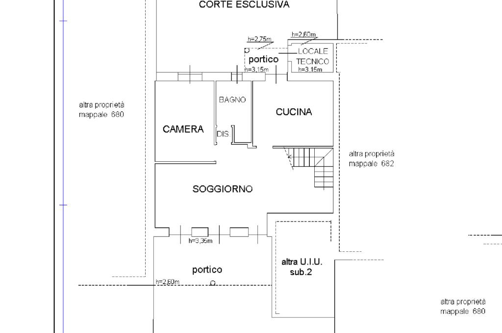
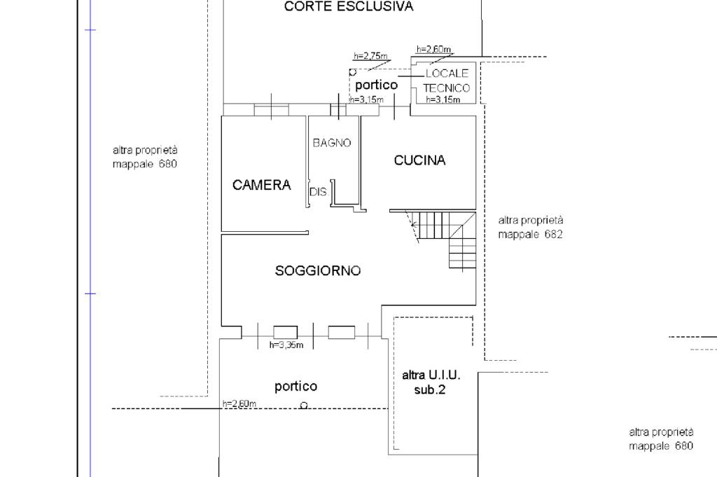
SUNO: Immersa nel verde, villa a schiera di recente costruzione con impianto fotovoltaico. L’immobile è disposto su due livelli, i quali separano la zona giorno dalla zona notte. Il piano terra, adibito a zona giorno con doppia esposizione sui due giardini di proprietà ospita un ampio e luminoso soggiorno con sala da pranzo, un bagno finestrato e una cucina abitabile. Tramite scala interna si accede al primo piano, interamente dedicato a zona notte, composto da un bagno, una camera da letto singola, una doppia ed infine una matrimoniale con cabina armadio e accesso ad un terrazzo privato di . 20mq. Completa la proprietà un box auto.

Mostra tutto

Nelle vicinanze

Trasporto pubblico Trasporto pubblico
Suno
Suno
510 m
Vaprio d'Agogna
Vaprio d'Agogna
2,2 Km
Scuole Scuole
Scuola Media Giuseppe Ravizza
2,1 Km
Scuola dell'infanzia
2,1 Km
Scuole
2,2 Km
Scuola Primaria
2,2 Km
Scuola Elementare
2,8 Km
Farmacia Farmacia
Farmacia Dottor Brigatti
2,2 Km
Bar Bar
Claby's Cafè
2,2 Km
Ristoranti Ristoranti
Arianna
2,2 Km
Ristorante San Giovanni
2,2 Km
Da Rino
2,3 Km
Le‘ Ris
2,5 Km
Ristorante Pizzeria La Lucciola
2,6 Km
Mostra tutto

Caratteristiche

Rif.:
61187542
Piano:
Su più livelli di 2
Totale piani:
2
Box:
1
Posti auto:
1
Terrazzi:
1
Mostra tutto
Prezzo Prezzo
€ 209.000
Rata mutuo Rata mutuo
€ 976 / mese
Spese annue Spese annue
€ 0
Proponi il tuo prezzoProponi il tuo prezzo

Classe Energetica

A3
A3
A3
A3
A3
A3
A3
A3
A3
EP globale non rinnovabile:
39.88 kW h/m² anno
EP globale rinnovabile:
44.78 kW h/m² anno
EP invernale del fabbricato:
EP estiva del fabbricato:
Anno di costruzione:
2015
Riscaldamento:
Autonomo
Tipo impianto:
A pavimento
Tipo alimentazione:
Pannelli

Ti interessa visionare l'immobile?

Fissa un appuntamento  Fissa un appuntamento

Richiedi informazioni

Clicca su Leggi per aprire l'informativa
* Questi campi sono obbligatori

Calcola il tuo mutuo

Semplice e senza impegno
Anticipo

( % )
Mutuo

( % )

pochi semplici passi

inserisci i tuoi dati
Questionario completato
Grazie per aver richiesto un appuntamento senza impegno con un nostro Consulente del Credito e Assicurativo.

Hai inserito correttamente tutti i dati necessari e a breve riceverai una e-mail con un link da convalidare per inviare i tuoi dati.
Affiliato
Immobiliare Oleggio Sas
Via Verjus, 11 28047 Oleggio (NO)

Il nostro staff


  • Cinzia Galgano
    Coordinatrice

  • Sabrina Nostro
    Collaboratrice

  • Christian Poletti
    Collaboratore

  • Kristian Eramo
    Affiliato

  • Davide Santoro
    Collaboratore
Via Verjus, 11 28047 Oleggio (NO)
Zona: Oleggio-Bellinzago N.Se-Marano T.no-Momo-Suno Barengo-Mezzomerico-Vaprio D'agogna
Mostra su mappa
Affiliato
Immobiliare Oleggio Sas
Via Verjus, 11 28047 Oleggio (NO)

2026 Tecnocasa Franchising S.p.A. - P. IVA 08365160152 - Via Monte Bianco 60/A 20089 Rozzano (MI). Ogni agenzia ha un proprio titolare ed è autonoma. Privacy policy | Policy utilizzo | Cookie policy